Edificio residenziale in via Portuense - Roma
30.12.2018
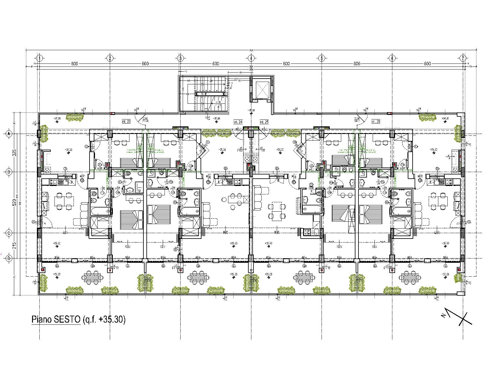
Il progetto in corso di costruzione è stato concepito in attuazione del Piano Casa tramite intervento di sostituzione edilizia di vecchi fabbricati artigianali / industriali. Il progetto prevede la realizzazione di 32 appartamenti (bilocali e trilocali) per 7 piani. La realizzazione ha previsto particolare attenzione a tutti gli aspetti bioclimatici e di sostenibilità ambientale.
